为提升建装专业学生的建筑装饰制图与识图技能水平,引导同学们参与训练并夯实技能基础,大力发扬“工匠”精神,本学期15周,建装专业21级学生建筑装饰制图与识图Ⅱ实习在线上正式开启。
老师们通过腾讯会议的形式,上传资料,分组布置作业,每天带动学生进行图纸的绘制,悉心指导,每位学生也能积极主动完成老师的实习任务。建筑装饰制图与识图Ⅱ实习的开展,为同学们提供了一个提升软件制图技艺的平台,检验了同学们建筑装饰识图能力和CAD制图的真实水平,有助于同学们进一步认识到自身的不足与今后的努力方向,真正做到学思结合,知行统一。
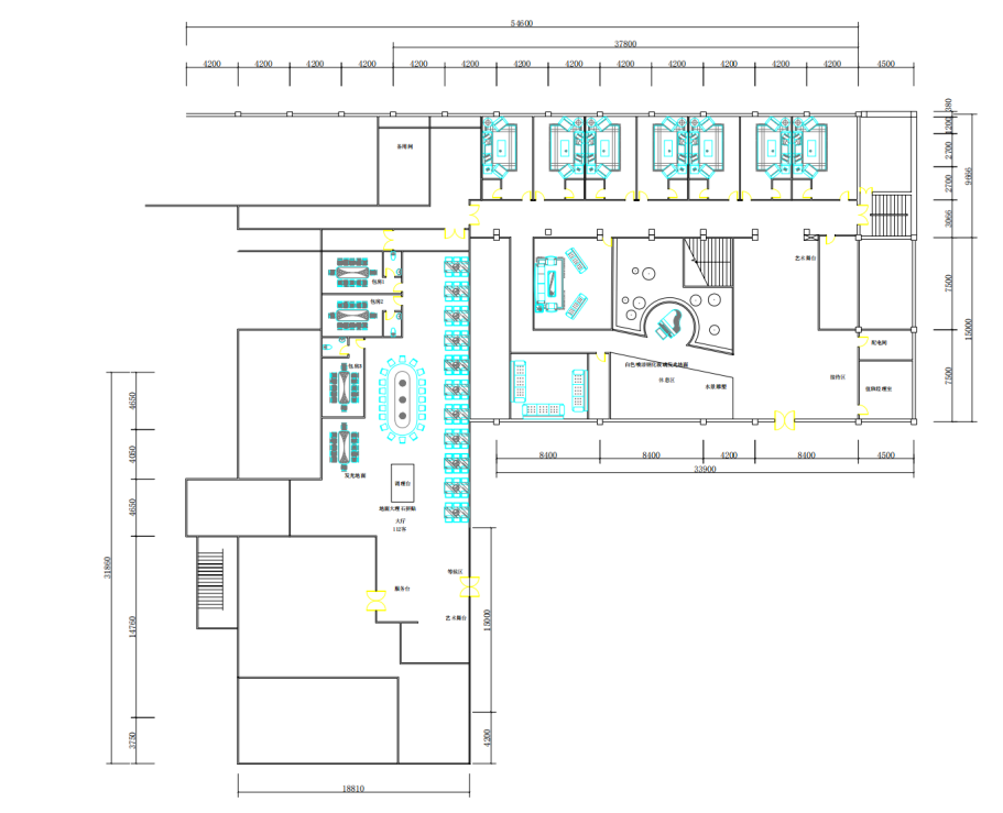
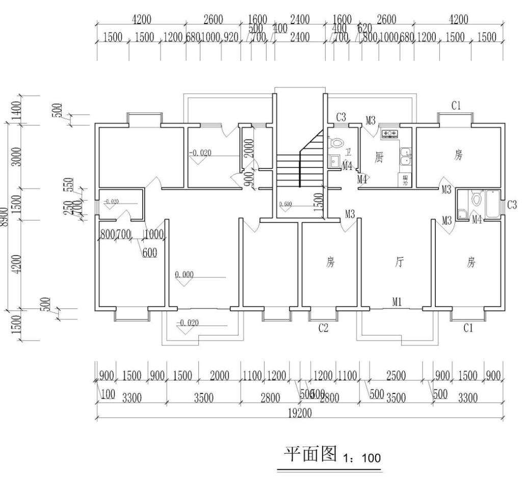
部分学生实习作品:




