6月9日——6月11日,环艺教研室的老师们对环艺21级四个班的学生进行了每班为期3天的CAD施工图绘制实训,由于疫情原因,此次是CAD施工图绘制实训首次在线上进行。
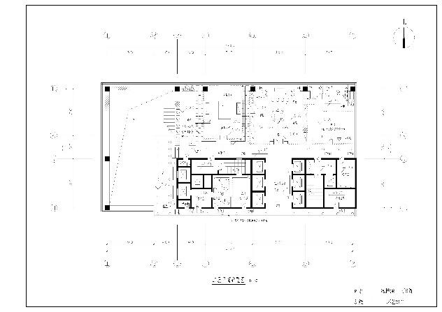
CAD实习是环艺专业的重要实训。本实训结合CAD课程的理论学习通过成套施工图的包括有平面、剖立面、详图等内容的CAD绘制、结果打印出图等要求,让学生对CAD工具软件操作基本技能进行系统性的运用。让学生巩固学习软件各基本命令操作,并让学生初步建立起Auto CAD软件工具绘工程图的总体体系系统。让学生了解并体会软件工具绘图与手工工具绘图在绘图组织、绘图管理、绘图逻辑程序等方面的异同,从而为学生今后的专业学习打下良好的基础。本次实训要求同学们熟读实习参考文件,根据要求,选择身边合适的材料进行模型设计与制作,每人独立完成一个建筑或室内空间的模型制作工作。
各班经过为期3天的项目实训,学生更好地掌握了CAD绘图环境设置(图线、图层、图块库、文字样式、标注样式、图框设定、文件存放、命令代码设定、打印管理器设定等)、绘图基本命令和操作,同时熟悉了建筑设计、室内设计行业的相关设计规范等基本制作流程。
在整个实习过程中,同学们们独立自主地完成项目,极大的发挥了学生的自主能动性,充分体现学生的制图规范操作。在实习过程中遇到的问题,通过老师帮助,生生互助的方式,极大的提高了学生们的集体意识及解决问题的能力。


